Merikotkantie 6, Kaukovainio, Oulu
erillistalo | 4h,k,khh,kph,s,wc,vh,ak
Hinta349 000 €
Koko
98.5 m2
Vuosi2020
Arvostatko asumisessasi tyylikkyyttä ja modernia ilmettä? Haluatko asua kodissa, missä on upea värimaailma ja loistokkaat materiaalit? Onko unelmissasi ollut uuden veroinen päätykoti, missä kaikki on kohdallaan?
Tule tutustumaan ja ihastumaan tähän erillistaloon, jonka sisustus on toteutettu huolella huomioon ottaen jokaisen pienimmänkin yksityiskohdan!
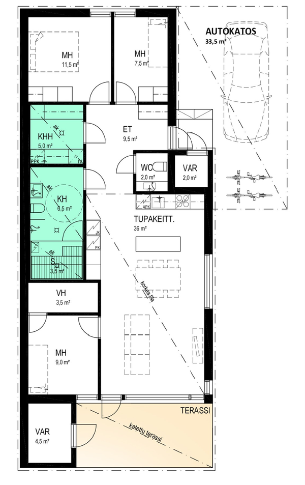
Koti on kuin unelma, tämän päätyasunnon mahtava pohjaratkaisu tekee kodista todella avaran ja valoisan. Isot ikkunat valaiset huoneita. Kodin huoneiden modernit pinnat ja upeat materiaalit ovat todella tyylikkäät.
Tyylikäs ja modernikeittiö on ruoanlaittajan unelma. Se myös hivelee silmiä. Keittiössä on modernit valkoiset kaapistot ja mahtavat työtasot. Hienot vaaleat kodinkoneet ovat harkitusti valitut. Keittiö ja ruokailutila avautuvat olohuoneeseen samana tilana. Avaraa olohuonetta helppo sisustaa useilla eri tavoilla. Olohuoneesta on käynti lasitetulle terassille sekä tilavalle takapihalle, josta aukeaa upea näkymä vehrään puistonäkymään. Päätyasunto lisää yksityisyyttä ja omaa rauhaa. Tilava piha antaa mahdollisuuden myös toteuttaa omia puutarhaunelmia. Täällä on ihana olla!
Kodissa on kolme makuuhuonetta. Makuuhuoneet ovat myös tyylikkäitä ja hyvän kokoisia. Yhdessä makuuhuoneessa on erillinen vaatehuone ja toisissa kaapistot.
Kodinhoitohuone on hyvänkokoinen ja mahdollistaa siten sujuvan vaatehuollon. Tilava kylpyhuone kätkee sisäänsä modernin tunnelman. Tyylikkäät materiaalit tekevät kylpytilasta todella upean. Lasinen seinä kylpyhuoneen ja saunan välillä on upea. Oma sauna kruunaa tämän ihastuttavan kokonaisuuden. Täällä voit todella nauttia.
Autokatospaikka kuuluu asunnolle ja se on asunnon yhteydessä. Tilava varastohuone sijaitsee pääoven vieressä. Toiseen varastoon käynti terassilta.
Tämä erillistaloasunto on ihastuttava löytö, tällaisia modernin tyylikkäitä koteja on vain harvoin tarjolla. Sovi siis pian yksityisesittely tähän unelmakotiin! Soita Anne p. 044 543 1983 tai Mauri p. 040 566 9644.
Tule tutustumaan ja ihastumaan tähän erillistaloon, jonka sisustus on toteutettu huolella huomioon ottaen jokaisen pienimmänkin yksityiskohdan!
Koti on kuin unelma, tämän päätyasunnon mahtava pohjaratkaisu tekee kodista todella avaran ja valoisan. Isot ikkunat valaiset huoneita. Kodin huoneiden modernit pinnat ja upeat materiaalit ovat todella tyylikkäät.
Tyylikäs ja modernikeittiö on ruoanlaittajan unelma. Se myös hivelee silmiä. Keittiössä on modernit valkoiset kaapistot ja mahtavat työtasot. Hienot vaaleat kodinkoneet ovat harkitusti valitut. Keittiö ja ruokailutila avautuvat olohuoneeseen samana tilana. Avaraa olohuonetta helppo sisustaa useilla eri tavoilla. Olohuoneesta on käynti lasitetulle terassille sekä tilavalle takapihalle, josta aukeaa upea näkymä vehrään puistonäkymään. Päätyasunto lisää yksityisyyttä ja omaa rauhaa. Tilava piha antaa mahdollisuuden myös toteuttaa omia puutarhaunelmia. Täällä on ihana olla!
Kodissa on kolme makuuhuonetta. Makuuhuoneet ovat myös tyylikkäitä ja hyvän kokoisia. Yhdessä makuuhuoneessa on erillinen vaatehuone ja toisissa kaapistot.
Kodinhoitohuone on hyvänkokoinen ja mahdollistaa siten sujuvan vaatehuollon. Tilava kylpyhuone kätkee sisäänsä modernin tunnelman. Tyylikkäät materiaalit tekevät kylpytilasta todella upean. Lasinen seinä kylpyhuoneen ja saunan välillä on upea. Oma sauna kruunaa tämän ihastuttavan kokonaisuuden. Täällä voit todella nauttia.
Autokatospaikka kuuluu asunnolle ja se on asunnon yhteydessä. Tilava varastohuone sijaitsee pääoven vieressä. Toiseen varastoon käynti terassilta.
Tämä erillistaloasunto on ihastuttava löytö, tällaisia modernin tyylikkäitä koteja on vain harvoin tarjolla. Sovi siis pian yksityisesittely tähän unelmakotiin! Soita Anne p. 044 543 1983 tai Mauri p. 040 566 9644.
Asunnon perustiedot
Sijainti
Merikotkantie 6, Kaukovainio, 90250, Oulu
Tyyppi
erillistalo
Omistusmuoto
oma
Huoneistoselitelmä
4h,k,khh,kph,s,wc,vh,ak
Huoneita
3
Asuintilojen pinta-ala
98.5 m²
Muiden tilojen pinta-ala
0.0 m²
Kokonaispinta-ala
98.5 m²
Lisätietoja pinta-alasta
Todella hyväkuntoinen ja uudenveroinen erillistalo asunto suositulla alueella odottaa uusia asukkaitaan. Kodin tilat ovat avarat ja valoisat. Olohuone-keittiöyhdistelmä on tilava ja avara. Täällä on tilaa niin ruokailuryhmällekin kuin olohuoneen kalustollekin. Olohuoneesta on käynti lasitetulle terassille ja isolle pihamaalle. Kodin kolme makuuhuonetta ovat kaikki myös hyvänkokoisia. Kylpyhuoneessa ja oma sauna kutsuu löylyihin. Kodinhoitohuone on omana tilanaan. Tilavat kylmävarastot pääoven vieressä ja takapihan terassin yhteydessä. Autolle on autokatospaikka. Taloyhtiön päätykoti on vertaansa vailla!
Kerrokset
1/1
Rakennusvuosi
2020
Käyttöönottovuosi
2020
Vapautuminen
sopimuksen mukaan
Hinta ja kustannukset
Hinta
Myyntihinta
349 000,00 €
Velaton hinta
349 000,00 €
Vastike
Hoitovastike
354,60 € / kk
Yhtiövastike yhteensä
354,60 € / kk
Lisätietoja maksuista
Hoitovastike 30.6.2026 saakka 354,60e/kk ja 1.7.2026 alkaen 394e/kk
Vesimaksuennakko 16,00e/hlö/kk.
Laajakaistamaksu 10,30e/kk.
Vesimaksuennakko 16,00e/hlö/kk.
Laajakaistamaksu 10,30e/kk.
Asunnon tilat ja materiaalit
Saunan kuvaus
Tyylikäs sauna kutsuu kylpemään. Ihanassa vaaleasävyisessä saunassa on kaunis panelointi ja valaistus. Upea lasiseinä erottaa kylpyhuonetilan ja saunan toisistaan.
Keittiön kuvaus
Todella kaunis ja avara keittiö. Modernit valkoiset kaapistot ja laadukas koneistus ihastuttaa vaativaakin makua. Keittiössä on hyvin kaappi- ja laskutilaa. Saareke tuo vielä hyvin lisää lasku- ja säilytystilaa. Keittiö yhtenäistä ja avaraa tilaa olohuoneen kanssa.
Kylpyhuoneen kuvaus
Todella tyylikäs ja kaunis tilava kylpyhuone. Upeat vaalen harmaat materiaalit kruunaavat tämän tilan. Kylpyhuoneen ja saunan välillä on iso lasiseinä.
WC-tilojen kuvaus
Kodissa on kaksi wc-tilaa. Toinen wc-tila on erillisenä ja toinen wc- tila on kylpyhuoneen yhteydessä.
Kodinhoitohuoneen kuvaus
Kodinhoitohuone on omana tilanaan. Kodinhoitohuoneessa on hyvin kaappi- ja säilytystilaa.
Olohuoneen kuvaus
Olohuone on avara ja valoisa ja yhdistyy sujuvasti keittiöön. Tilassa on ihanan korkea katto tuomassa lisää tilaa ja ilmavuutta. Isot ikkunat tuovat tilaan luonnon maisemaa ja auringon valoa. Olohuone-keittiötilasta on käynti aurinkoiselle ja lasitetulle terassille ja takapihalle.
Makuuhuoneiden kuvaus
Kodissa on kolme makuuhuonetta. Makuuhuoneet ovat todella kauniit ja hyvän kokoisia. Yhdessä huoneessa erillinen vaatehuone ja kahdessa huoneessa kaapistot.
Asunnon tontti
Tontin omistus
Oma
Tontin pinta-ala
2161.0 m²
Taloyhtiö
Taloyhtiön nimi
As Oy Oulun Kotkansiipi 6
Isännöitsijän yhteystiedot
Hallituksen puheenjohtaja Panu Toivonen
Kirjanpitotoimisto Talotili Oy
Lumijoentie 1, 90400 Oulu
0207480219
Taloyhtiön autopaikat
Autokatospaikkoja: 6
Energialuokka
B2018
Tontin koko
2161.0
Tontin omistus
oma
Palvelut ja liikenneyhteydet
Palvelut
Ruokakauppa 400 m.
Postin palvelupiste 3,0 km.
Kirjasto 450 m.
Terveysasema 1,8 km.
Liikenneyhteydet
Hyvät liikenneyhteydet Oulun keskustaan.
Päiväkoti
Kaksi päiväkotia sijaitsee alle kilometrin päässä.
Kartta

Keinänen Anne
Omistaja, LKV