Alapellontie 1, Oulunsalo/Koura, Oulunsalo
rivitalo | 3h,k,kph/khh,s,wc
Hinta124 000 €
Koko
68.0 m2
Vuosi2005
Olisiko seuraava kotisi rivitalon päätyasunto rauhallisella alueella? Arvostatko luontoa, palvelujen läheisyyttä ja hyviä kulkuyhteyksiä? Tässä olisi koti, joka on kaikkea tätä ja paljon muutakin.
Tämä ihastuttava koti Oulunsalossa odottaa uusia asukkaitaan. Kodin olohuone on tilava ja yhdistyy keittiöön, tehden tiloista toimivat. Kodin vaalea keittiö on hyväkuntoinen ja ikkunan äärellä on oiva paikka ruokailuryhmälle. Suuret ikkunat tuovat luonnonvaloa sekä rauhaisan näkymän omalle takapihalle. Takapihalle on käynti olohuoneesta. Oleskeluun ja grillailuun on terassitilaa ja lisäksi hyvin nurmialuetta. Täällä on tilaa ja rauhaa nauttia ulkoilmassa!
Makuuhuoneita on kodissa kaksi. Tilava päämakuuhuone on hyvänmallinen ja mahdollista kalustaa usealla eri tavalla. Kodin molemmat makuuhuoneet sijaitsee heti ulko-oven lähettyvillä. Kummassakin makuuhuoneessa on paljon kaappitilaa.
Tilavassa kodinhoitohuoneessa on paikka pesukoneelle ja pyykkihuollolle sekä tilasta löytyy myös kodin wc. Kodinhoitotilan kautta on käynti kylpyhuoneeseen ja tunnelmalliseen saunaan. Täällä kelpaa nautiskella ihanista löylyistä.
Koti sijaitsee rauhallisella paikalla Oulunsalossa hyvien yhteyksien ympäröimänä. Täällä on ihana asua ja elää!
Tervetuloa ihastumaan paikanpäälle. Sovi oma esittelyaikasi vaikkapa jo tänään!
Myyntiä hoitaa Anne p. 044 543 1983
Tämä ihastuttava koti Oulunsalossa odottaa uusia asukkaitaan. Kodin olohuone on tilava ja yhdistyy keittiöön, tehden tiloista toimivat. Kodin vaalea keittiö on hyväkuntoinen ja ikkunan äärellä on oiva paikka ruokailuryhmälle. Suuret ikkunat tuovat luonnonvaloa sekä rauhaisan näkymän omalle takapihalle. Takapihalle on käynti olohuoneesta. Oleskeluun ja grillailuun on terassitilaa ja lisäksi hyvin nurmialuetta. Täällä on tilaa ja rauhaa nauttia ulkoilmassa!
Makuuhuoneita on kodissa kaksi. Tilava päämakuuhuone on hyvänmallinen ja mahdollista kalustaa usealla eri tavalla. Kodin molemmat makuuhuoneet sijaitsee heti ulko-oven lähettyvillä. Kummassakin makuuhuoneessa on paljon kaappitilaa.
Tilavassa kodinhoitohuoneessa on paikka pesukoneelle ja pyykkihuollolle sekä tilasta löytyy myös kodin wc. Kodinhoitotilan kautta on käynti kylpyhuoneeseen ja tunnelmalliseen saunaan. Täällä kelpaa nautiskella ihanista löylyistä.
Koti sijaitsee rauhallisella paikalla Oulunsalossa hyvien yhteyksien ympäröimänä. Täällä on ihana asua ja elää!
Tervetuloa ihastumaan paikanpäälle. Sovi oma esittelyaikasi vaikkapa jo tänään!
Myyntiä hoitaa Anne p. 044 543 1983
Asunnon perustiedot
Sijainti
Alapellontie 1, Oulunsalo/Koura, 90460, Oulunsalo
Tyyppi
rivitalo
Omistusmuoto
oma
Huoneistoselitelmä
3h,k,kph/khh,s,wc
Huoneita
2
Asuintilojen pinta-ala
68.0 m²
Muiden tilojen pinta-ala
0.0 m²
Kokonaispinta-ala
68.0 m²
Lisätietoja pinta-alasta
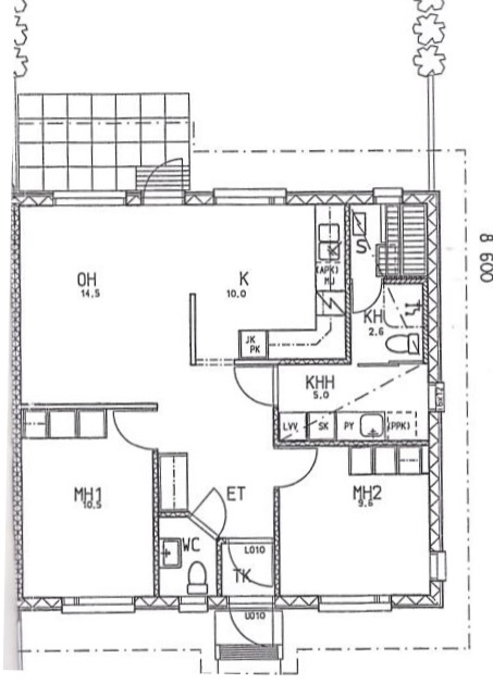
Hyväpohjainen rivitalon päätykolmio, jossa kaikki tilat ovat yhdessä tasossa.
Kerrokset
1/1
Rakennusvuosi
2005
Käyttöönottovuosi
2005
Vapautuminen
heti
Hinta ja kustannukset
Hinta
Myyntihinta
124 000,00 €
Velaton hinta
124 000,00 €
Vastike
Hoitovastike
176,80 € / kk
Yhtiövastike yhteensä
176,80 € / kk
Asunnon tilat ja materiaalit
Saunan kuvaus
Tunnelmallinen sauna kutsuu lämpimiin löylyihin.
Keittiön kuvaus
Tilava keittiö vaalean sävyisillä kaapistoilla. Ikkunan äärellä on paikka ruokailuryhmälle. Keittiö yhdistyy tilavaan olohuoneeseen, tehden tiloista toimivat.
Kylpyhuoneen kuvaus
Erillisen kodinhoitohuoneen kautta on kulku vaalein sävyin laatoitettuun kylpyhuoneeseen ja tunnelmalliseen saunaan. Kylpyhuoneen yhteydessä myös wc.
WC-tilojen kuvaus
Eteisen yhteydessä on hyvänkokoinen erillinen wc. Toinen wc kylpytilojen yhteydessä.
Kodinhoitohuoneen kuvaus
Siisti ja tilava kodinhoitohuone vaaleilla kaapistoilla. Omapaikka pyykinpesukoneelle.
Olohuoneen kuvaus
Ihastuttava olohuone on valoisa ja tilava. Tätä tilaa on ilo sisustaa. Olohuone yhdistyy keittiöön tehden tiloista toimivat. Olohuoneesta on käynti kodin terassille sekä pihamaalle. Olohuoneen lattiat kovapuuta.
Makuuhuoneiden kuvaus
Kaksi makuuhuonetta, joissa molemmissa kaapistot säilytykseen. Makuuhuoneen lattiat ovat kovapuuta.
Asunnon tontti
Tontin omistus
Oma
Tontin pinta-ala
3147.0 m²
Vuokrasopimus päättyy
12.4.2026
Taloyhtiö
Taloyhtiön nimi
As Oy Oulunsalon Kouranpuisto
Isännöitsijän yhteystiedot
Isännöinti Sarka
Sari Kamula-Gärding
Osoite: Ollilantie 1
90440 Kempele
0415054331
Taloyhtiön autopaikat
Autokatospaikkoja: 8
Energialuokka
E2018
Tontin koko
3147.0
Tontin omistus
oma
Palvelut ja liikenneyhteydet
Kartta

Keinänen Anne
Omistaja, LKV